Prodej prostorného bytu 3+1/balkon, ul. Kosmonautů , Hořovice

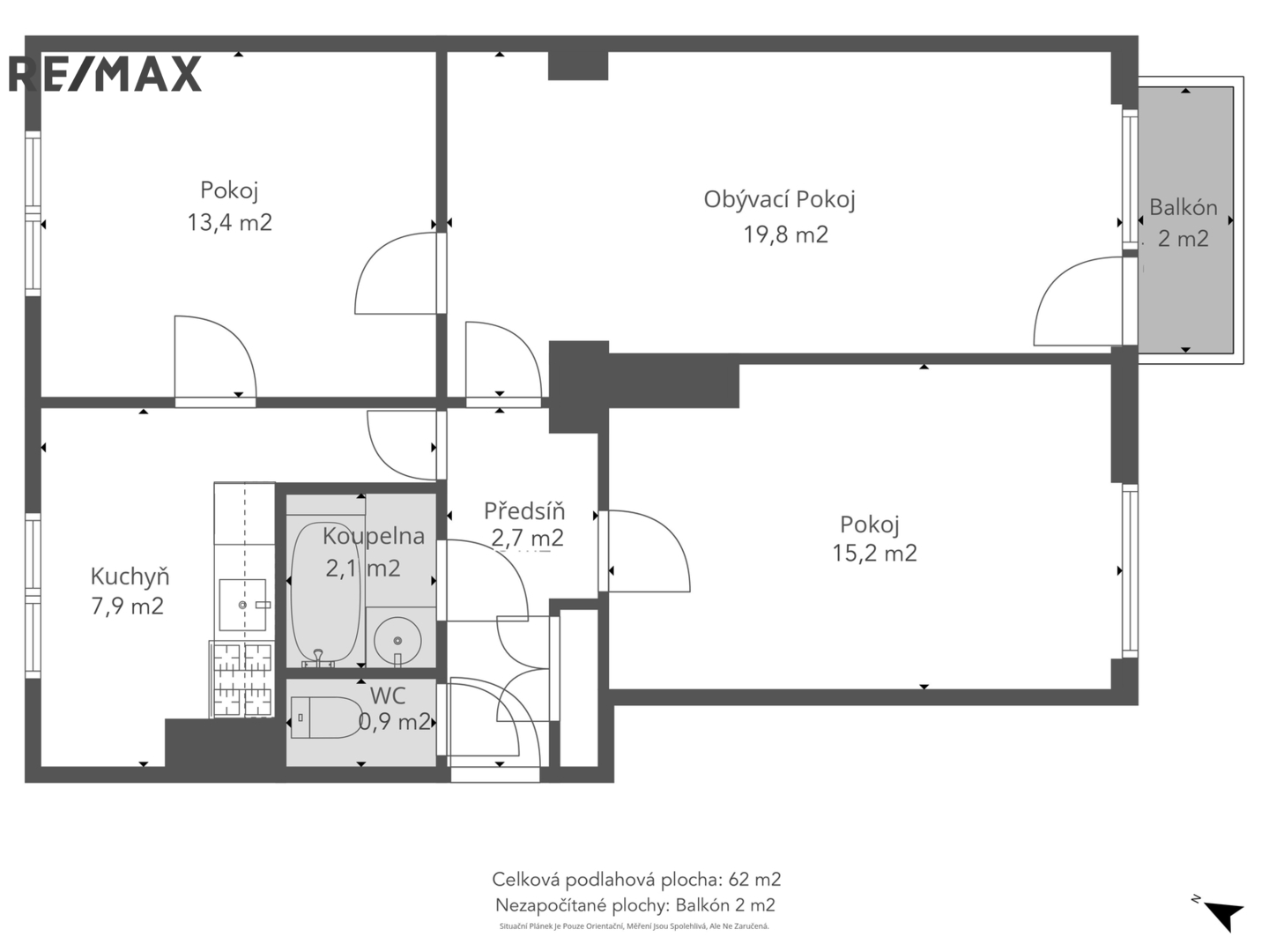
Nabízíme k prodeji prostorný byt o dispozici 3 + 1/balkon, nacházející se ve 3. nadzemním podlaží čtyřpatrového panelového domu ul. Kosmonautů, Hořovice, okres Beroun. Byt má celkovou plochu 65 m². K bytu náleží i 2 sklepy v suterénu domu s plochou cca 4 m², což poskytuje další úložné prostory. Byt je v původním stavu určený k rekonstrukci.
Byt je vyklizený, bez vybavení, což nabízí příležitost vytvořit si domov podle vlastních představ a potřeb.
Zateplený bytový dům je napojený na všechny IS – kanalizaci, vodovod, plyn – topení je zajištěno pomocí WAW topných těles. Ohřev vody je zajištěn plynovým kotlem.
Parkování v okolí domu nebo se máte možnost zakoupení koupení zděné garáže od majitele přímo v blízkosti domu. Náklady na energie a služby : 2 100 Kč ( platby do SVJ ), 2 800 Kč plyn a 2 400 Kč elektřina.
Klidná lokalita na okraji města. Hořovice nabízejí veškerou občanskou vybavenost. V blízkosti bytového domu se nachází autobusové nádraží. Nájezd na D5 cca 5km – dostupnost do Prahy nebo Plzně zhruba 30 min.
V případě zájmu o prohlídku nás neváhejte kontaktovat.

Kosmonautů

Číslo zakázky:NP01381
Město:Hořovice
Dispozice: 3 + 1
Podlahová plocha:398 m2
Druh objektu:Smíšená
Stav objektu:Před rekonstrukcí
Energetická náročnost budovy:G
Garáž:Ne
Voda:vodovod
Odpad:kanalizace
Balkón:Ano (2 m2)
Lodžie:Ne
Výtah:0

Mgr. Irena Vávrová

Telefon: +420 739 500 588
Email: irena.vavrova@re-max.cz